大呂/売買・中古戸建 大呂(大呂1276)
| 所在地 | 島根県仁多郡奥出雲町大呂1276 地図⇒(ここで場所を確認する) |
|---|---|
| 物件種別 | 中古戸建 |
| 物件名 | |
| 売買 |
3,000万円
|
| 築年月 | 2004/1/1 |
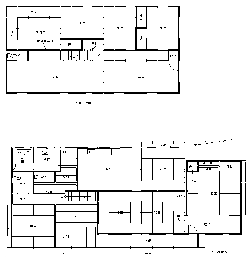
| 面積 | 278.76m² |
| 計測方式 | 壁芯 |
| 向き | 南西 |
| 建物階数 | 地上2階 |
| 部屋階数 | 2階 |
| 建物構造 | 木造 |
| 敷地全体面積 | 705.34m² |
| 取引態様 | 専属 |
| 地目 | 宅地 |
| 用途地域 | 無指定 |
| 都市計画 | 都市計画区域外 |
| 地勢 | 傾斜地 |
| 土地面積計測方式 | 公簿 |
| 土地権利 | 所有権 |
| 接道状況 | 一方 |
| 接道方向1 | 西 |
| 接道間口1 | 4m |
| 接道種別1 | 公道 |
| 接道幅員1 | 4m |
| 国土法届出 | 不要 |
| 周辺環境 |
横田小 横田中 |
| 設備・条件 | 住宅と隣接の車庫建物と畑を含む |
| 物件番号 | Uー018 |
| 自社物 | 自社物 |
| 状態 | 売出中 |