今津/売買・中古戸建(4DK) 今津(今津町461-2)
| 所在地 | 島根県安来市今津町461-2 地図⇒(ここで場所を確認する) |
|---|---|
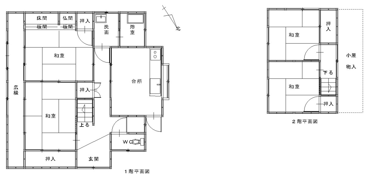
| 物件種別 | 中古戸建 4DK |
| 物件名 | 飯島町K物件 |
| 売買 |
390万円
|
| 築年月 | 1976/3 |
| 新築/中古 | 中古 |
| 面積 | 85.64m² |
| 計測方式 | 壁芯 |
| 建物階数 | 地上2階 |
| 建物構造 | 木造 |
| 敷地全体面積 | 221.56m² |
| 延べ床面積 | 85.64m² |
| 取引態様 | 一般 |
| 地目 | 宅地 |
| 用途地域 | 準工業 |
| 都市計画 | 市街化区域 |
| 地勢 | 平坦 |
| 土地面積 | 221.56m² |
| 土地面積計測方式 | 公簿 |
| 建ぺい率 | 60% |
| 容積率 | 200% |
| 土地権利 | 所有権 |
| 接道状況 | 一方 |
| 接道方向1 | 北東 |
| 接道間口1 | 2.7m |
| 接道種別1 | 私道 |
| 接道幅員1 | |
| 国土法届出 | 不要 |
| 周辺環境 |
十神 一中 |
| 設備・条件 | |
| 物件番号 | y-1115 |
| 自社物 | 自社物 |