三成/売買・中古戸建(9SDK) 三成(三成451-13)
| 所在地 | 島根県仁多郡奥出雲町三成451-13 地図⇒(ここで場所を確認する) |
|---|---|
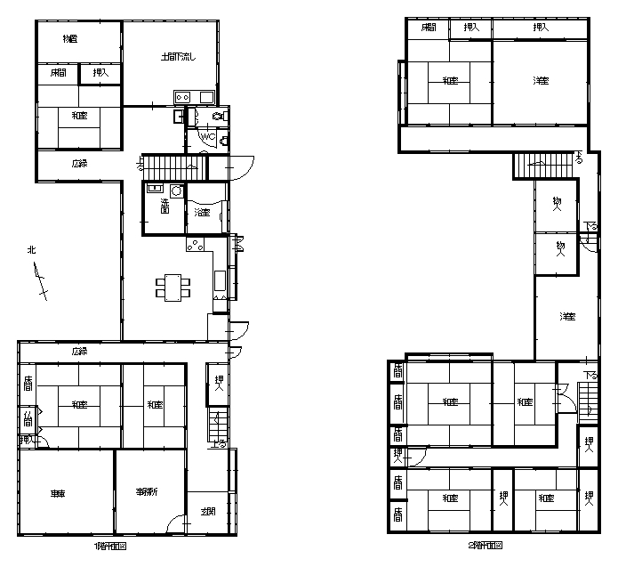
| 物件種別 | 中古戸建 9SDK |
| 物件名 | 奥出雲三成N住宅 |
| 売買 |
850万円
|
| 築年月 | 1976/1 |
| 新築/中古 | 中古 |
| 面積 | 133.88m² |
| 計測方式 | 壁芯 |
| 建物階数 | 地上2階 |
| 部屋階数 | 2階 |
| 建物構造 | 木造 |
| 敷地全体面積 | 274.4m² |
| 延べ床面積 | 133.88m² |
| 取引態様 | 専属 |
| 地目 | 宅地 |
| 用途地域 | 無指定 |
| 都市計画 | 非線引き区域 |
| 地勢 | 平坦 |
| 土地面積 | 274.40m² |
| 土地面積計測方式 | 公簿 |
| 建ぺい率 | 70% |
| 容積率 | 200% |
| 土地権利 | 所有権 |
| 接道状況 | 二方(除角地) |
| 接道方向1 | 北東 |
| 接道間口1 | 11m |
| 接道種別1 | 公道 |
| 接道幅員1 | 10m |
| 接道方向2 | 北西 |
| 接道間口2 | 30m |
| 接道種別2 | 私道 |
| 接道幅員2 | 3m |
| 国土法届出 | 不要 |
| 周辺環境 |
三成 仁多 |
| 設備・条件 | 一部鉄骨倉庫あり |
| 物件番号 | UT-21 |
| 自社物 | 自社物 |
| 状態 | 売出中 |